为改善农村环境、倡导人与自然的和谐发展、助力农村可持续发展,提升公益活动的社会影响力,优米app官方下载联合丰田汽车(中国)投资有限公司启动“丰田隆化可持续发展乡村项目”自然教育基地升级工作,现面向社会公开征集项目实施单位。具体事项公告如下:
一、项目概况
(一)实施时间
于2025年12月前完成安装,管护期至2027年9月。
(二)实施地点
河北省承德市隆化县茅荆坝镇老局子村
(三)项目目标
在房屋内安装创意立体景墙、互动展架、装饰画和装饰等展示设施,并配备空调设备,以完善自然教育基地的功能,强化可持续发展理念的展示与传播效果。
(四)升级改造范围
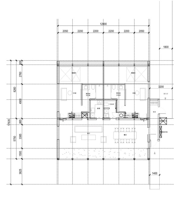
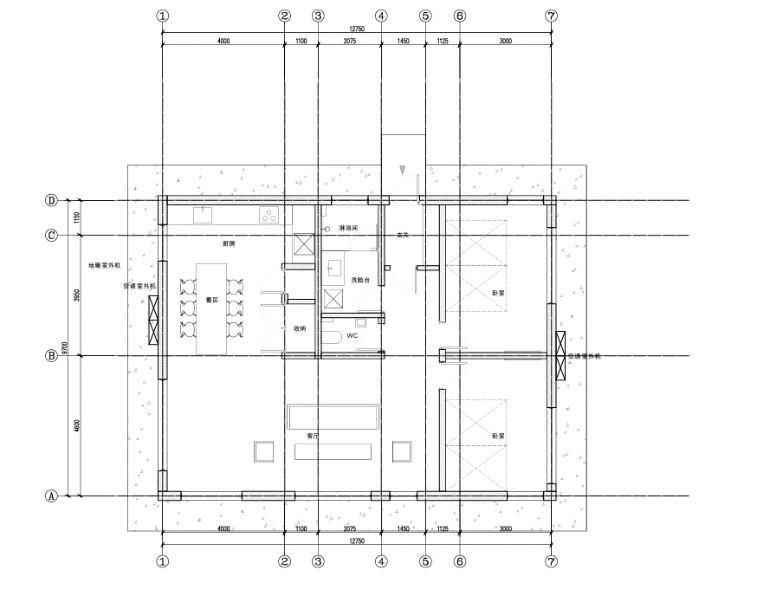
两栋房屋改造面积为157.84平方米。房屋实景和图纸如下。

图一 房屋1图纸

图三 房屋2图纸

二、项目要求
(一)自然教育基地升级改造
1.内容设计:需要进行平面设计和立体结构设计。依托现有资料与场地条件,进行基地改造的展陈空间布置设计、展陈造型设计和展陈内容的平面设计(包括文字和图片整理、内容编制、创意元素设计和印刷等),融合“自然教育”“环境保护”“乡村振兴”三大主题的理念,突出“礼·山溪”项目特色。立体结构设计需要使整体空间层次丰富,美观大方,互动性强,并且动线合理。
2.功能分区:
(1)固定展区:“礼·山溪”理念专区、树莓主题专区、自然教育活动展示区和可持续能源展示区,系统呈现项目的核心理念与实施成果。
(2)灵活展区:预留临时展览与活动空间。
3.展陈内容:
(1)内容可更换展陈单元数量≥5块,需要有美观造型,其中包括可替换陈列模块和具有可互动性立体景墙,增强互动氛围与沉浸感。
(2)装饰布置≥3项,动线设计需流畅。
(3)展架≥1项,用于展示陈列学生作品和相关书籍等。
(4)立体模型台≥1项,用于展示陈列学生作品和相关书籍等。
要求:主体结构(展架、立体景墙、装饰件和翻翻乐等设施)统一采用环保材料,使用可拆装结构,便于后期更换内容和回收再利用。具有安全性和耐用性,材料边缘需做圆角或防护处理,防止划伤;承重展架需做结构加固,确保可安全放置书籍、模型等。
4.运输与施工:确保设计的立体景墙、展架,布置装饰等可以运输到现场并进行施工。需要控制全流程进度,协调供应商,并进行质量把控。在材料运输、展馆搭建、展示期间及撤离过程中,由于设计布展承接方的原因造成他人人身、财产受损的,由承接方负全部责任。
(二)空调安装
要求:1台3匹一级能效变频立柜式空调,需提供详细技术参数(制冷/热量、尺寸、功率等)。
(三)基地维护
负责2年内基地日常维护,包括但不限于水电维修。
三、项目预算
不超过10万元。包含展厅设计费、展厅和空调安装费、空调采购费、材料运输费、施工管理费、人员费、交通费、保险费和税费(如有)等与本项目实施相关的其他费用,如有服务费或管理费,所占预算比例不得超过预算的10%。
四、应征单位资质要求
(一)申报单位必须是在中华人民共和国境内(不含香港、澳门及台湾地区)注册的有能力提供本项目所需服务的法人单位或其他组织,具备有效的营业执照。
(二)具备平面设计和展览服务等能力,具有良好的社会信誉和健全的财务管理制度,可开具正规票据,近三年无重大违法违规记录、无失信行为、无不良履约记录。
(三)能按照基金会财务管理要求使用项目经费,资金列支须按照优米app官方下载项目资金管理指引要求,符合国家相关费用规定。
(四)有相关项目经验。
五、申报时间
2025 年8月26日—9月1日
六、评审流程
1.本征集公告在优米app官方下载官网、微信公众号、采招网进行发布。
2.收集申报单位材料。
3.项目部门就申报项目进行初筛,如申报单位提交材料不满足征集公告要求,取消其申报资格。
4.组织相关专家进行项目综合评审。
5.推荐委托执行单位在优米app官方下载官网、微信公众号、采招网公示。
七、申报材料要求
1.封面页:注明 “丰田隆化可持续发展乡村项目基地升级实施单位申报”,包含申报单位名称、联系人、联系电话,并加盖公章。
2.组织依法成立资质证明,包括但不少于:营业执照副本或统一社会信用代码证书复印件,银行开户许可证等(需盖章)。
3. 项目申报书,包括项目实施方案及预算,其中实施方案包括设计思路、理念说明和展区效果图等相关信息(需盖章,设计图纸及方案(必须是原创,若侵犯他人著作权、肖像权的,由设计方承担一切法律责任)。
4. 相关或相似项目经验及能力证明(需盖章)。
5.其他认为有必要提供的文件(需盖章)。
八、材料提交方式
有意者请于 2025 年 9 月 1日 18:00 前,将所有申报材料按顺序合并为1个PDF 文件,加盖公章后发送至邮箱 liuhuiwen@cepf.org.cn,邮件标题格式为 “丰田隆化可持续发展乡村项目基地升级项目 - XXX 单位(全称)”。将盖章版纸质材料寄送至:北京市东城区广渠门内大街 16 号环境大厦 703 室,收件人:刘老师,联系电话:010 - 67116117。
优米app官方下载
2025年8月26日


京公网安备11010102004309号